
компания Electrolux предлогает фанкойлы кассетного типа EFR. Кассетные фанкойлы имеют угол обдува в 360 градусов. При этом дизайн который позволяет применять во всех коммерческих и административных помещениях.
Благодаря компактным размерам, фанкойл кассетного типа Electrolux легко внедрить в межпотолочное пространство.
Дренажный поддон изготовлен из пластика и имеет дренажный насос.
Удобное управление инфракрасным пультом

Система самодиагностики
Кассетные фанкойлы не только недежны и эффективны но и имеют отличные шумовые характиристики и делают работу фанкойла безшумной.
Все модели имеют возможность работы как на холод так и на тепло. Есть исполнение 2-х трубной и 4-х трубной системы.
Расширенный функионал:
- система самодиагностики;
- антикорозийное исполнение;
- подмес свежего воздуха;
-моющийся фильтр;
- дренажная помпа.
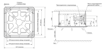
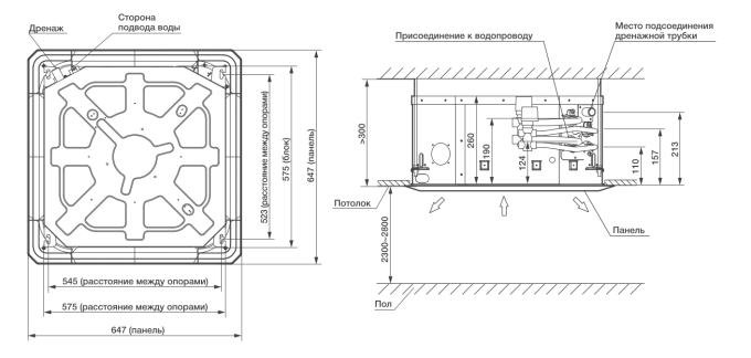
Габаритные размеры кассетных фанкойлов Electrolux EFR:
компактное исполнение - 
Стандарное исполнение:
Фанкойл Electrolux серии EFR всегда по доступной цене. Узнать больше информации или получить полную консультацию можете, позвонив нашим специалистам по телефону (093)708-42-52

