
компанія Electrolux пропонує фанкойли касетного типу EFR. Касетні фанкойли мають кут обдування 360 градусів. При цьому дизайн, який дозволяє застосовувати у всіх комерційних та адміністративних приміщеннях.
Завдяки компактним розмірам, фанкойл касетного типу Electrolux легко впровадити в міжстельовий простір.
Дренажний піддон виготовлений із пластику та має дренажний насос.
Зручне керування інфрачервоним пультом

Система самодіагностики
Касетні фанкойли не тільки ненадійні та ефективні, але й мають відмінні шумові характеристики і роблять роботу фанкойлу безшумною.
Всі моделі мають можливість роботи як на холод, так і на тепло. Є виконання 2-х трубної та 4-х трубної системи.
Розширений функціонал:
- Система самодіагностики;
- антикорозійне виконання;
- підмішування свіжого повітря;
-Миється фільтр;
- Дренажна помпа.
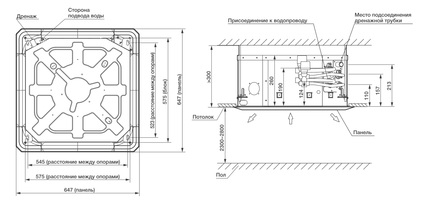
Габаритні розміри касетних фанкойлів Electrolux EFR:
компактне виконання - 
Стандартне виконання: 
Фанкойл Electrolux серії EFR завжди за доступною ціною. Дізнатися більше інформації або отримати повну консультацію можете, зателефонувавши нашим фахівцям за телефоном (093)708-42-52

