Оберіть мову сайту

RU
UA
RU
  • Кассетный фанкойл Electrolux EFR-300 12 мес

    Все о товаре
    Описание
    Характеристики
    Отзывы
    Основные характеристики Кассетный фанкойл Electrolux EFR-300 12 мес
    Производитель:
    Гарантийный срок:
    12 мес
    Расход воздуха:
    510 куб.м/час
    Холодопроизводительность:
    3.52 кВт
    Теплопроизводительность:
    4.7 кВт
    Ширина:
    575 мм
    Высота:
    263 мм
    Напряжение питания:
    220 В

     

    компания Electrolux предлогает фанкойлы кассетного типа EFR. Кассетные фанкойлы имеют угол обдува в 360 градусов. При этом дизайн который позволяет применять во всех коммерческих и административных помещениях.

    Благодаря компактным размерам, фанкойл кассетного типа Electrolux легко внедрить в межпотолочное пространство. 

    Дренажный поддон изготовлен из пластика и имеет дренажный насос.

    Удобное управление инфракрасным пультом

    Снимок экрана 2021-02-01 в 12.57.29

    Система самодиагностики

    Кассетные фанкойлы не только недежны и эффективны но и имеют отличные шумовые характиристики и делают работу фанкойла безшумной.

    Все модели имеют возможность работы как на холод так и на тепло. Есть исполнение 2-х трубной и 4-х трубной системы.

    Расширенный функионал:
    - система самодиагностики;
    - антикорозийное исполнение;
    - подмес свежего воздуха;
    -моющийся фильтр;
    - дренажная помпа.

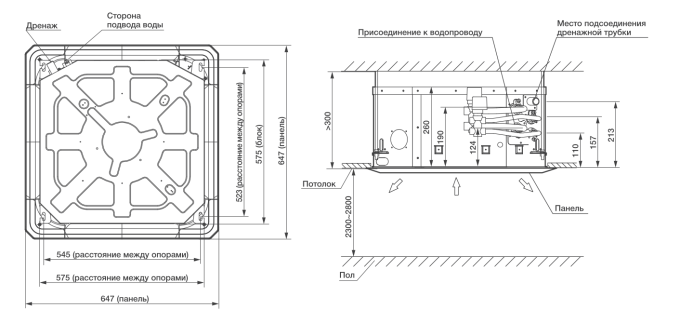
    Габаритные размеры кассетных фанкойлов Electrolux EFR:

    компактное исполнение -

    Снимок экрана 2021-02-01 в 12.58.26

    Стандарное исполнение:
    Снимок экрана 2021-02-01 в 12.58.33

    Фанкойл Electrolux  серии EFR всегда по доступной цене. Узнать больше информации или получить полную консультацию можете, позвонив нашим специалистам по телефону (093)708-42-52

    В наличии
    19522.00 ₴
    Условия доставки

    ДОСТАВКА ТОВАРА ПО УКРАИНЕ

    Условия оплаты

    Оплата Наличными, Visa/MasterCard, Приват24, Кредит, Оплата частями, Мгновенная рассрочка, Безналичными

    Гарантийное обслуживание

    Гарантия 12 месяцев, обмен/возврат товара в течение 14 дней

    Монтаж

    Наша компания производит монтаж любой сложности под ключ. Гарантия на монтаж 

     

    компания Electrolux предлогает фанкойлы кассетного типа EFR. Кассетные фанкойлы имеют угол обдува в 360 градусов. При этом дизайн который позволяет применять во всех коммерческих и административных помещениях.

    Благодаря компактным размерам, фанкойл кассетного типа Electrolux легко внедрить в межпотолочное пространство. 

    Дренажный поддон изготовлен из пластика и имеет дренажный насос.

    Удобное управление инфракрасным пультом

    Снимок экрана 2021-02-01 в 12.57.29

    Система самодиагностики

    Кассетные фанкойлы не только недежны и эффективны но и имеют отличные шумовые характиристики и делают работу фанкойла безшумной.

    Все модели имеют возможность работы как на холод так и на тепло. Есть исполнение 2-х трубной и 4-х трубной системы.

    Расширенный функионал:
    - система самодиагностики;
    - антикорозийное исполнение;
    - подмес свежего воздуха;
    -моющийся фильтр;
    - дренажная помпа.

    Габаритные размеры кассетных фанкойлов Electrolux EFR:

    компактное исполнение -

    Снимок экрана 2021-02-01 в 12.58.26

    Стандарное исполнение:
    Снимок экрана 2021-02-01 в 12.58.33

    Фанкойл Electrolux  серии EFR всегда по доступной цене. Узнать больше информации или получить полную консультацию можете, позвонив нашим специалистам по телефону (093)708-42-52

    Основные характеристики Кассетный фанкойл Electrolux EFR-300 12 мес
    Производитель:
    Гарантийный срок:
    12 мес
    Расход воздуха:
    510 куб.м/час
    Холодопроизводительность:
    3.52 кВт
    Теплопроизводительность:
    4.7 кВт
    Ширина:
    575 мм
    Высота:
    263 мм
    Длина:
    575 мм
    Вес:
    15 кг
    Уровень шума:
    33 дБ
    Тип фанкойла по количеству теплообменников:
    Двухтрубная система
    Тип фанкойла:
    Кассетный
    Напряжение питания:
    220 В
    Страна производитель:
    Китай
    Кассетный фанкойл Electrolux EFR-300 12 мес
    В наличии
    19522.00 ₴